Оренбург

Евродвушка у метро СПб, 53 м2, 8/25 эт.

Евродвушка у метро СПб, 53 м2, 8/25 эт.
Евродвушка у метро СПб, 53 м2, 8/25 эт. Евродвушка у метро СПб, 53 м2, 8/25 эт. Евродвушка у метро СПб, 53 м2, 8/25 эт. Евродвушка у метро СПб, 53 м2, 8/25 эт. Евродвушка у метро СПб, 53 м2, 8/25 эт.
Цена: 14,972,000 руб.
Контактное лицо: Светлана Федоровна
Адрес: Санкт-Петербург, пр.Луначарского, 15 к.1
Телефон: 89214365002
Е-mail: Отправить письмо
Сайт:

Готовая к заселению уютная евродвушка в шаговой доступности от метро
5 минут пешком
Всего 2 минуты до общественного транспорта и 10 минут на машине до КАД

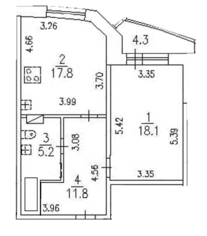
Евродвушка (52,9 кв.м.) с ремонтом в СПб

Пространство для жизни:
Умная планировка
Разделенные зоны: 18.1 м для отдыха и 17.8 м для работы и жизни
Ремонт под ключ
Не нужно вкладываться просто заезжайте и живите
Вся необходимое - бытовая техника, мебель уже включена
Комфорт и спорт
Расслабляющая ванная, панорамные окна и фитнес-инфраструктура у живописных Суздальских озер
Транспорт:
Для автомобилей предусмотрен отапливаемый подземный паркинг

Идеальный вариант для инвестиции или комфортной жизни в готовой квартире с развитой инфраструктурой

Узнайте больше
Бронируйте просмотр
Приходите сегодня и покупайте!

2025-12-15

Отправить письмо
Смотрите также: Евродвушка метро СПб 825